Woolbeding

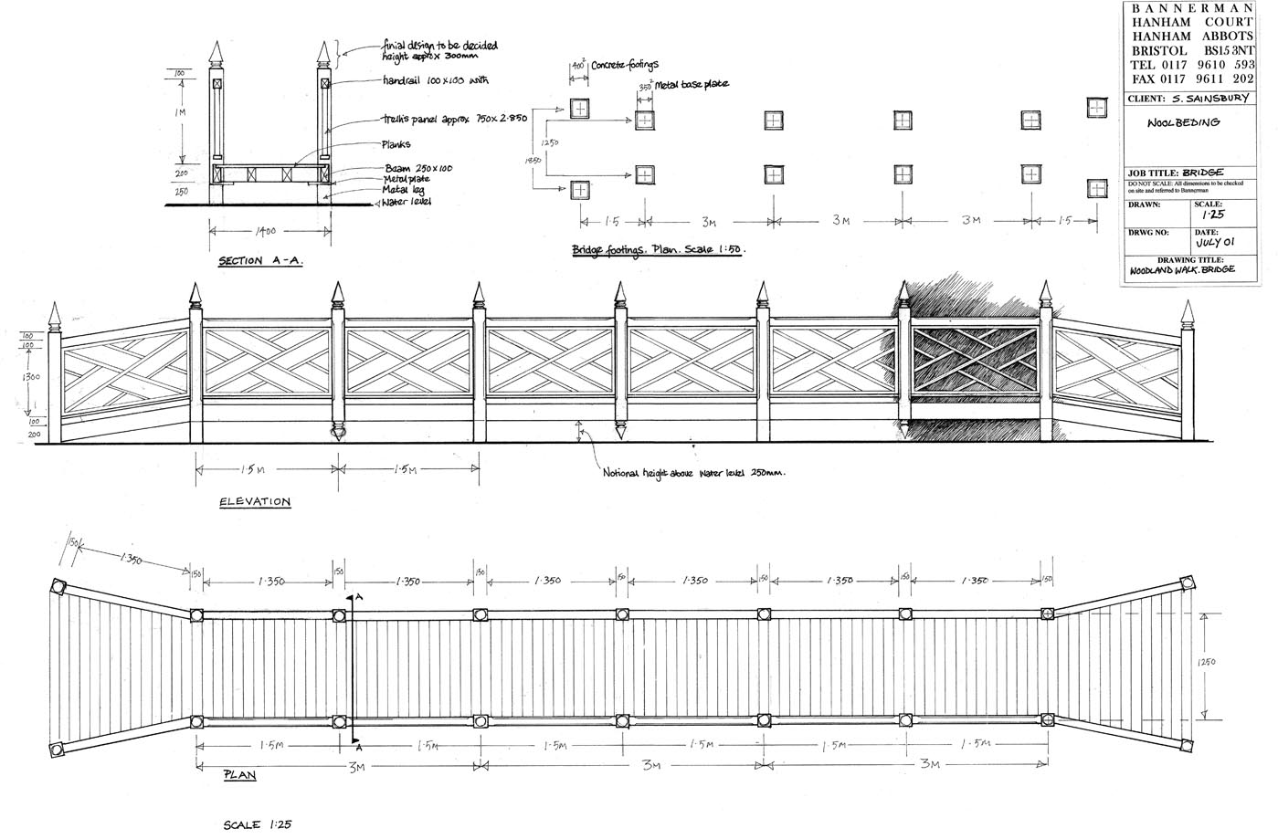
It is hard to remember precisely a first project meeting with Simon Sainsbury and Stewart Grimshaw. But I remember the excitement, anticipation and curiosity in the run-up to whenever it finally happened. It had been in the offing a long time. We had met at the Chelsea Flower Show probably a decade before, and whilst we were working at Wormsley, Christopher Gibbs had often mentioned these very dear friends and the garden in Sussex that they had created with the legendary American landscape architect, Lanning Roper. Simon had vaguely mentioned to Julian he had a woodland- cum-water garden but that it felt unresolved and might be something for us to take a look at one day. He was particularly anxious about two bridges, made in brown wood, which Christopher Gibbs had felt were all wrong. We heard no more until about 2006, and could not have predicted what a positive and fruitful mission it would turn out to be. Simon was in a hurry, he had Parkinson’s which troubled him physically but not in the least mentally. Whenever a meeting about drain runs becomes interminable we think of Simon terminating such talk with the withering observation ‘there is only so much that can be said upon this subject.’ This as a garden where the clients were very specific about what they wanted. We may have taken them down surprising pathways, but fundamentally it was intended as a very intimate swansong, and Elgarian dream, and Niel MacGregor spoke of it in his eulogy at Simon’s memorial. Enfolded in the Sussex downland, Woolbeding has history with mystery and botany, and has been expanded and developed since by Stewart, a serious plantsman, who has commissioned Thomas Heatherwick to create a highly engineered greenhouse, for which the garden will become world famous.




CONTACT  /  INSTAGRAM

© I&J Bannerman 1983–2024, all rights reserved.

I & J Bannerman Ltd. Ashington Manor, Mudford, Somerset, BA22 8ED
Company # 2620704   VAT # 543361262

Design by Dunstan Baker